Ismertető
Győr közelében Écsen, újonnan épülő, igényes kialakítású, tégla építésű családi ház leköthető.
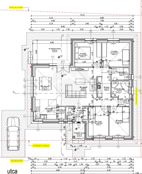
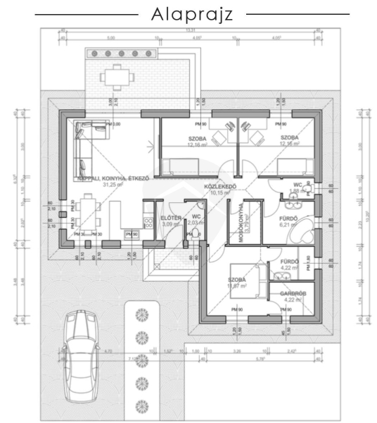
A nappali + négy szobával(vagy akár több szobával) rendelkező ingatlan alapterülete nettó 110 m2, mely igény szerint módosítható.
A praktikusan tervezett házban a szobákon kívül tágas és napfényes amerikai konyhás nappali, gardrób, kamra, szélfogó, közlekedő, fürdőszoba+wc, háztartási helyiség és egy külön mellékhelyiség is kialakításra kerül.
Az élhető méretű telek összesen 1400 m2-es, mely 30%-ban beépíthető.
A feltüntetett vételár az emelt szintű fűtés kész árat és a telek árát tartalmazza, de igény esetén kulcsra kész befejezésre is van lehetőség!
Továbbá az ár tartalmazza a komplett tervezői díjat(gépészet, metszetek, statika, energetika, engedélyek), plusz egy inverteres(hűtő-fűtő) klímát!
A jelenlegi árajánlatban az otthon melegéről hőszivattyús fűtésrendszer gondoskodik, padlófűtéses hőleadással, de a fűtésrendszer is az építtető igényei alapján módosítható!
A részletes műszaki leírást és az Építőipari cég weboldalát kérésére e-mailben elküldöm.
Más az elképzelése? Válassza ki Ön a saját elképzeléseinek megfelelő alaprajzot!
Amennyiben teljesen egyedi tervezést szeretne, az is lehetséges!
A képek látványtervek.
Jól átgondolt tervezés, megfelelő szakmai tudás és háttér garantálja a MINŐSÉGI OTTHON megvalósítását!
További kérdés esetén állok rendelkezésére!
Amennyiben megbízható építtetőt szeretne, referenciamunkákkal, minőségi anyagokkal és kivitelezéssel, hívjon bizalommal akár hétvégén is!
Teljes körű ügyintézéssel:
- Ügyvéd
- Biztosítás
- Hiteltanácsadás
- Generálkivitelezés
- Ingatlanértékesítés
- Teljeskörű ingatlanfelújítás
- CSOK, babaváró, áfa visszaigénylés - állunk rendelkezésére!
Részletek
-
Építés éve:
2026 -
Szobák száma:
5 -
Állapot:
új -
Épület típusa:
családiház -
Kilátás:
kertre néz -
Tájolás:
DK -
Telekméret:
1400 m2 -
Övezet:
nincs adat -
Tetőtér:
nincs adat
