Ismertető
Fedezd fel ezt a kiváló állapotú, használt lakóingatlant Vámosszabadiban, Győr-Moson-Sopron megyében!
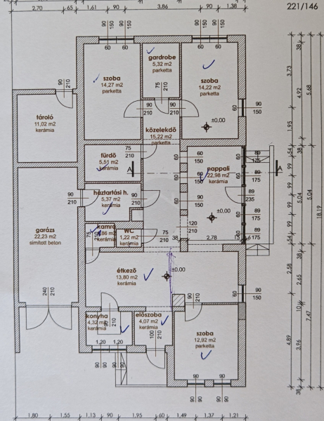
Az ingatlan 2002-ben épült 38-as Porotherm téglából, nettó 121 négyzetméteres alapterülettel mely egy tágas, 1233 négyzetméteres telken helyezkedik el, amely ideális választás lehet családok számára, vagy akár befektetési céllal is.
A házban nappali + három szoba található, így bőven van hely a családi élethez, valamint a vendégek fogadásához, az ingatlan további helyiségei: konyha, étkező, kamra, előszoba, közlekedő, gardrób, háztartási helyiség, fürdőszoba+wc és egy külön mellékhelyiség.
A terasz mérete 10 négyzetméter, amely tökéletes helyszín lehet a reggeli kávézáshoz vagy a nyári baráti összejövetelekhez.
A kert rendezett, mely automata öntözőrendszerrel van ellátva, így a zöld területek karbantartása gyerekjáték.
Ezen kívül a kerti tároló praktikus megoldást nyújt a szerszámok és egyéb kerti eszközök tárolására, így a kert mindig rendezett és ápolt maradhat.
Az otthon melegéről gáz-cirkó kazán gondoskodik, radiátoros hőleadással, ami gazdaságos és kényelmes megoldás a téli hónapokban, további alternatívaként egy hangulatos cserépkályha is helyet kapott, a légkondicionáló berendezés pedig a nyári melegben biztosítja a kellemes hőmérsékletet.
A környék csendes és biztonságos, tökéletes választás családoknak.
Az ellátottság kiváló, hiszen a közelben található bolt, iskola és orvosi rendelő is.
Az ingatlan kitűnő közlekedési lehetőségekkel rendelkezik, így könnyedén elérheted a város többi részét autóval vagy tömegközlekedéssel egyaránt.
A parkolóhelyek tekintetében az ingatlanhoz kapcsolódó garázs áll rendelkezésedre, amelyben akár két autó is kényelmesen elfér.
Ez az ingatlan nemcsak egy otthon, hanem egy életstílus is, amely a természet közelségét és a városi élet előnyeit ötvözi, ha kérdéseid lennének, vagy szeretnéd személyesen is megtekinteni ezt a csodás ingatlant, bátran keress bizalommal!
Itt az idő, hogy megtaláld álmaid otthonát!
Teljes körű ügyintézéssel:
- Ügyvéd
- Biztosítás
- Generálkivitelezés
- Ingatlanértékesítés
- Teljeskörű ingatlanfelújítás
- Bankfüggetlen hiteltanácsadás
- CSOK, babaváró, áfa visszaigénylés - állunk rendelkezésére!
Részletek
-
Építés éve:
2002 -
Szobák száma:
4 -
Állapot:
kiváló -
Fűtés:
cirkó -
Épület típusa:
családiház -
Terasz:
10 m2 -
Kilátás:
kertre néz -
Tájolás:
DNY -
Telekméret:
1233 m2 -
Övezet:
nincs adat -
Tetőtér:
nincs adat
